.
Grundvariante

Grundvariante zweigeschossig

Nutzungsfläche:

Gesamt:

ca. 180m² Nutz- / Wohnfläche

 

Mögliche Nutzungsvarianten:

1-2 Wohneinheiten
1 Wohneinheit + 1 Büroeinheit

 
 
 

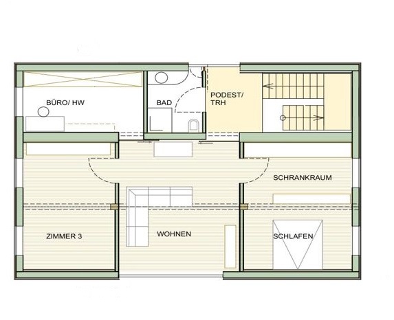
Unsere zweigeschossige Grundvariante ist optimal geeignet als Ein- oder Zweifamilien-Wohnhaus und / oder gewerbliche Nutzung für Büro's/ Kanzleien,.... Sie besteht aus sechs Modulen die passgenau aneinander und übereinander angeordnet werden. (Jeweils 3 Module ergeben 1 Geschoss)


 
 

Beispielgrundriss EG

Beispielgrundriss OG

 
 
 
balken
 

 
 
 

© 2021 | schnell haus GmbH

 
 

schnell haus gmbh  .  schloßbergstraße 21  .   88348 bad saulgau
07581 / 480 30-50  .  07581 / 480 30-55  .  E-Mail schreiben